Imagine 100

Spațiu Comercial | Investiție Solida | Chirias Activ | Splaiul Unirii

ID: P10221 Bucuresti, Tineretului 9
1.150.000€
Descriere
Spațiu de birouri complet închiriat pe 3 ani (cu posibilitate de prelungire), situat pe Splaiul Unirii, într-o clădire cu regim S+P+4E finalizată în 2005, întreținută impecabil.

Caracteristici principale:
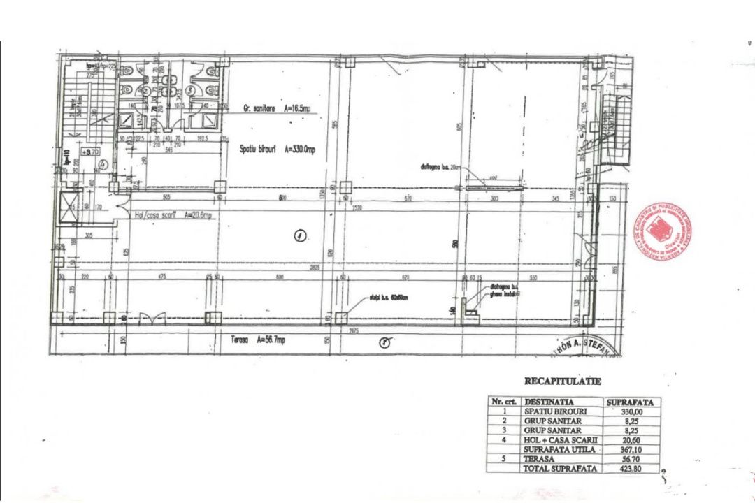
Suprafață utilă: 367 mp
Suprafață totală: 423,80 mp
2 terase însumând: 56,70 mp – perfecte pentru zone de relaxare corporate
7 locuri de parcare dedicate – rar întâlnite în zonă
Boxă la subsol: 10,72 mp – ideală pentru arhivare sau depozitare
Clădire solidă, cu infrastructură profesională și lift

Avantaje pentru investitor:
• Contract de închiriere pe 3 ani în desfășurare
• Chiriaș stabil, activ
• Posibilitate de prelungire a contractului
• Poziție excelentă, aproape de Piața Unirii, Timpuri Noi, mijloace de transport, restaurante și facilități business
• Spațiu ideal pentru companii medii și mari

Excelent pentru investitori care caută un activ valoros, cu venit imediat și potențial de creștere.

Acces facil la mijloacele de transport în comun: la doar 1 minut de mers pe jos până la stațiile STB.

Pentru mai multe informații și programarea unei vizionări, vă rugăm să ne contactați, menționând codul de identificare P7087.
Caracteristici
  • ID:P10221
  • Nr. camere:5
  • S. utila:317.82 mp
  • S. curte:211.47 mp
  • Comp.:Partial compartimentat
  • Etaj:Etaj 1
  • Nr. bai:2
  • Terase:2
  • Nr. parcari:7
  • An constructie:2005
  • Structura rezistenta:Beton
  • Tip imobil:Bloc
  • Regim inaltime:P+4
Specificatii
Curent
Apa
Canalizare
Gaz
Acces internet
Utilitati in zona
Izolatie Exterior
Izolatie Interior
Vopsea lavabila
Faianta
Parchet
Gresie
Ferestre PVC
Ferestre Termopan
Lampi
Aplice
Lumina naturala
Apometre
Contor caldura
Contor gaz
Nemobilat
Interfon
Spatii agrement
Administrare
Curatenie
Paza
Supraveghere video
Localizare
Posh Estate
Esti interesat de aceasta proprietate ?
Proprietati similare
0% comision De vanzare Imagine 992
Spatiu de birouri inchiriat | 525 m.p disponibili | Piata Unirii
Bucuresti, Unirii 1.100.000€ + TVA
13 camere 2 bai 525mp