Imagine 100

Cladire Istorica de Prestigiu in Centrul Capitalei strada Jaques Elias

ID: P10224 Bucuresti, Unirii 8
5.000.000€
Descriere
Cladire Istorica consolidata situata in centrul orasului Bucuresti, la km 0, cu acces la Bulevardul Ion C Bratianu, intre Piata Unirii si Piata Universitatii, strada Sf Vineri si str Elias Jaques,
Cladirea a beneficiat de multiple renovari si reparații capitale în anii 1936, 1978 si 1990, inclusiv lucrari de consolidare pentru a asigura durabilitatea si siguranța acesteia, cu pastrarea arhitecturii originale. Cladirea se afla pe o parcela in suprafata totala de 687 mp, cu o amprenta de 624 mp suprafata construita la sol.
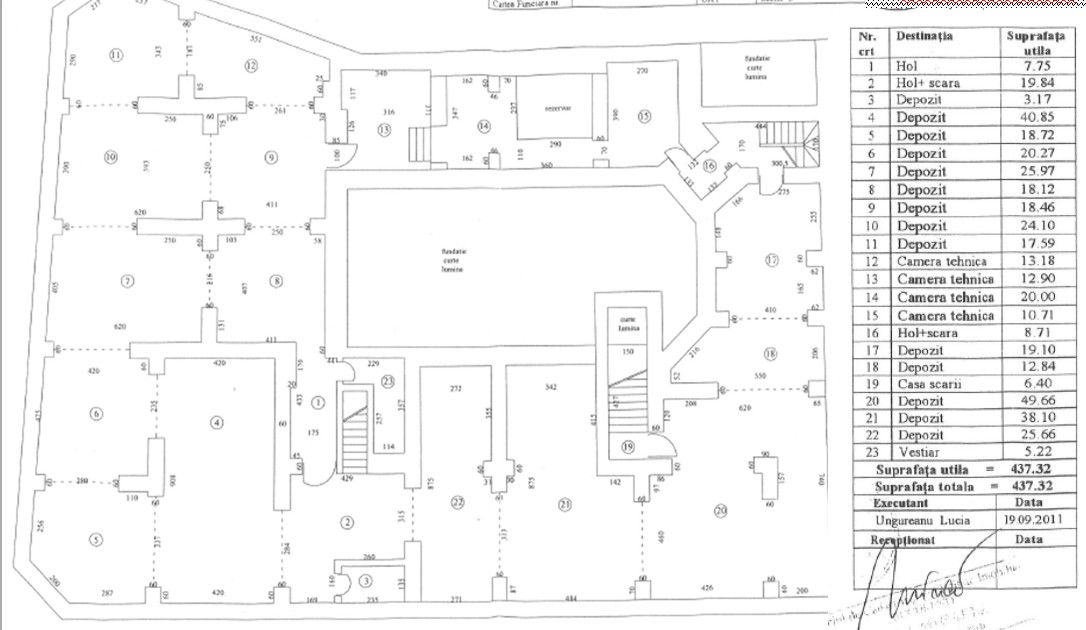
Cladirea este compusa din Subsol + Parter + Mezanin + Etaj + Mansarda, cu o suprafata totala desfasurata de 2418 mp si o suprafata utila de 1856,73 mp Realizata in stil eclectic cu puternice tuse neoclasice, casa a fost construita in 1890, avand destinatie comerciala.
Imobilul are 60 de camere, o curte interioara de 60 mp, si dipune de un teren cu o suprafata de 239 mp, ca terasa.
Casa este parte din ansamblul de arhitectura “Strada Elias Jaques”, inscris pe Lista Monumentelor Istorice 2010 – Municipiul Bucuresti
Monumentalismul constructiei este dat de elementele neoclasice: cornisa, pilastrii, frontoanele triunghiulare si ancadramentele ferestrelor. Proprietatea a apartinut inainte de nationalizare lui Nicolae Dinischiotu, ministru adjunct al Economiei Nationale in perioada de domnie a regelui Mihai I
Are trei laturi stradale cu spatii comerciale la parter, una pe B-dul I.C. Bratianu, a doua pe strada Sfanta Vineri si a treia pe strada Elias Jaques
Strada Elias Jaques poarta numele unuia dintre cei mai bogati romani. Industriasul , bancherul si mosierul Jaques Elias s-a nascut in Bucuresti in 1844. Un mare filantrop, si-a lasat prin testament intreaga avere Academiei Romane. A fost consilier al regelui Carol I si a dat numele uneia dintre cele mai cunoscute unitati medicale din tara, spitalul Elias.

Acest imobil excepțional, cu o suprafață totală de 2400 m², este situat într-o locație superbă în
centrul vechi al capitalei, la kilometrul 0 al Bucureștiului.
Detalii imobil:
• Demisol: Suprafață de 500 m², conectat direct la colectorul stradal de canalizare, cu 8
grupuri sanitare. Demisolul dispune de 3 ieșiri către strada si este dotat cu apa, canalizare
și curent electric.
• Parter: Include 5 magazine. Un magazin de 20 m² are ieșire directa pe strada Bratianu, în fața caruia se află un teren liber de 200 m². Restul de trei magazine
au ieșire la strada Sfanta Vineri, iar un magazin are ieșire la strada Geat Ilias
• Mezanin:, Ideal pentru diverse activitati comerciale sau birouri.
• Etajul 1: Ofera spatiu generos pentru birouri sau locuințe.
• Etajul 2: Adauga potențial acestei cladiri impresionante.
• Mansarda locuibila: Perfecta pentru amenajarea unor apartamente de lux.
• Cladirea dispune de curent electric trifazic (380V), cu 6 contoare de gaze și 6 contoare de curent electric.
• Alimentarea cu apa se face prin conducte de 2½ țoli.
• Bazin de apa pentru hidranti de o tona și hazna situate în demisol.
• Cladirea este legata direct la colectorul stradal și are înca două ieșiri de canalizare de
rezerva pentru eventuale investiții suplimentare.
• Parcare publica disponibila în fața cladirii, cu posibilitatea de închiriere de la primărie.

Vecinatatile includ: Centrul Vechi Bucuresti, Magazinul Cocor, Hotel Intercontinental, Unirii Shopping Center, Palatul Societatii Creditul Rural, Spitalul Coltea, Strada Lipscani,

Informatiile tehnice au caracter orientativ, acestea fiind preluate de la proprietar.

Acces la transportul în comun-> 2 minute pana la tramvai sau 7 minute pana la statiile de metrou Unirii/Universitate.
Pentru detalii si vizionari, va rugam sa ne contactați, specificand codul de identificare P6391.
Caracteristici
  • ID:P10224
  • Nr. camere:60
  • S. utila:1856.73 mp
  • S. balcoane:11.00 mp
  • S. terase:239.00 mp
  • S. teren:687.00 mp
  • Nr. bucatarii:8
  • Nr. bai:22
  • Nr. balcoane:1
  • An constructie:1890
  • Structura rezistenta:Altele
  • Regim inaltime:S+P+2+M
  • Orientare:Mixta
Specificatii
Curent
Apa
Canalizare
Gaz
Telefon
Acces internet
Fibra optica
Utilitati in zona
Termoficare
Calorifere
Aer conditionat
Izolatie Exterior
Bloc izolat termic
Vopsea lavabila
Faianta
Parchet
Gresie
Ferestre Termopan
Rulouri PVC
Usa intrare Metal
Usa interior Lemn
Spatiu depozitare
Dressing
WC Serviciu
Bucatarie Nemobilata
Bucatarie Neutilata
Apometre
Contor caldura
Contor gaz
Nemobilat
Interfon
Curte
Localizare
Posh Estate
Esti interesat de aceasta proprietate ?