Imagine 100

Duplex 4 camere 372 mp în ONE Herastrau Towers

ID: P10686 Bucuresti, Herastrau 11
1.999.989€ + TVA
Descriere
Posh Estate
Duplex 4 camere, decomandat, la etajele 10 și 11 din 12, în complexul rezidențial ONE Herăstrău Towers, situat la doar câțiva pași de Parcul Herastrau, Promenada Mall și Sky Tower, cu acces rapid la Aeroportul Internațional Henri Coandă, restaurante, cluburi exclusive, școli internaționale și grădinițe.
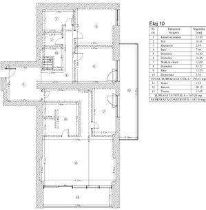
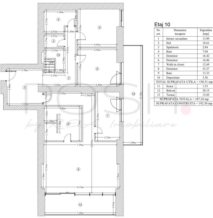
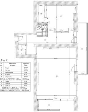
- Suprafață totală de 372,84 mp: 301,21 mp utili+ 19,61 mp balcon+ 9,71 mp balcon+ 20,15 mp balcon+ 15,05 mp terasă+ 7,11 mp scara.
- Configurație:
Nivel superior: foyer, living, grup sanitar, cămară, bucătărie, scară și 2 balcoane;
Nivel inferior: intrare secundara, hol, spalătorie, 2 băi, 3 dormitoare, walk-in closet, depozitare, scară, balcon și terasă.
- Încălzire în pardoseală asigurată de centrala de imobil și climatizare prin ventiloconvectoare.
Preț 2.000.000 EUR + TVA ( sau 2.420.000 EUR TVA inclus ).
3 locuri de parcare subterane disponibile la 30.000 EUR + TVA ( sau 36.300 EUR TVA inclus ) / loc.

Acces rapid la transportul public: 2 minute până la statiile STB, 13 minute până la metrou Aurel Vlaicu.
Contactează-ne pentru detalii suplimentare și programarea unei vizionări private. Cod proprietate P8798.
Caracteristici
  • ID:P10686
  • Nr. camere:4
  • Nr. dormitoare:3
  • S. utila:301.21 mp
  • S. balcoane:49.45 mp
  • S. terase:15.05 mp
  • S. utila totala:372.84 mp
  • S. construita:381.50 mp
  • Comp.:Decomandat
  • Confort:Lux
  • Etaj:Etaj 11
  • Nr. bucatarii:1
  • Nr. bai:3
  • Nr. balcoane:3
  • Nr. parcari:3
  • Pret parcare:30.000€ + TVA
  • An constructie:2021
  • Structura:Beton
  • Tip imobil:Bloc
  • Regim inaltime:S+P+12
  • Clasa energetica:A
Specificatii
Curent
Apa
Canalizare
Gaz
CATV
Acces internet
Fibra optica
Utilitati in zona
Centrala imobil
Incalzire pardoseala
Ventiloconvectoare
Izolatie Exterior
Izolatie Interior
Bloc izolat termic
Vopsea lavabila
Faianta
Parchet
Gresie
Ferestre Aluminiu
Usa intrare Metal
Usa interior Lemn
Terasa
Wc serviciu
Dressing
Bucatarie Nemobilata
Bucatarie Neutilata
Apometre
Contor gaz
Nemobilat
Videointerfon
Lift
Spatii agrement
Localizare
Posh Estate
Esti interesat de aceasta proprietate ?
Proprietati similare
TOP De vanzare Imagine 1196
Penthouse în ONE Herastrau Towers
Bucuresti, Herastrau 1.999.000€ + TVA
5 camere 4 bai 274.89mp