Imagine 100

4 camere în One Lake Club lângă Promenada Mall

ID: P10184 Bucuresti, Aviatiei 1
550.000€ + TVA
Descriere
Posh Estate
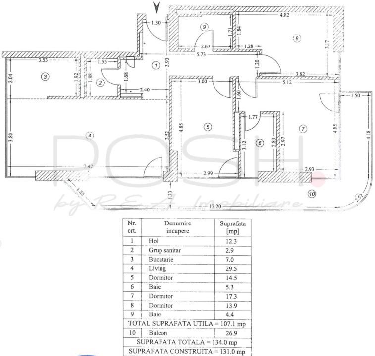
Apartament 4 camere, decomandat, la etajul 2 din 9, în complexul rezidențial One Lake Club, care oferă peste 7.000 mp de spații de relaxare, loc de joacă pentru copii, sală de sport, pază 24/7 și spații comerciale pentru confortul zilnic, construit în anul 2025.
- Suprafață totală de 136,52 mp: 107,4 mp utili+ 29,12 mp balcon.
- Configurație: 3 dormitoare, living cu bucătărie open space, hol, 3 băi și balcon.
- Încălzire în pardoseală asigurată de centrala de imobil și climatizare prin ventiloconvectoare.
Preț 550.000 EUR + TVA ( sau 665.500 EUR TVA inclus ). Opțional, 2 locuri de parcare subterane sunt disponibile pentru achiziție.

Acces rapid la transportul public: 3 minute până la statiile STB, 12 minute până la metrou Pipera.
Localizare: pe malul Lacului Tei, la câțiva pași de Hotel Caro, Muzeul Aviației, Globalworth și Promenada Mall, cu acces rapid la Șoseaua Fabrica de Glucoză, Barbu Vacărescu, Floreasca, Parcul Herăstrau, Autostrada A3 București-Ploiești și Aeroportul International Henri Coandă.
Contactează-ne pentru detalii suplimentare și programarea unei vizionări private. Cod proprietate P9473.
Caracteristici
  • ID:P10184
  • Nr. camere:4
  • Nr. dormitoare:3
  • S. utila:107.10 mp
  • S. balcoane:26.90 mp
  • S. utila totala:134.00 mp
  • S. construita:157.90 mp
  • Comp.:Decomandat
  • Confort:1
  • Etaj:Etaj 2
  • Nr. bucatarii:1
  • Nr. bai:3
  • Nr. balcoane:1
  • Nr. parcari:2
  • An constructie:2025
  • Structura:Beton
  • Tip imobil:Bloc
  • Regim inaltime:S+P+9
  • Orientare:Sud
  • Clasa energetica:A
Specificatii
Curent
Apa
Canalizare
Gaz
CATV
Acces internet
Fibra optica
Utilitati in zona
Centrala imobil
Incalzire pardoseala
Ventiloconvectoare
Izolatie Exterior
Bloc izolat termic
Vopsea lavabila
Faianta
Parchet
Gresie
Ferestre Aluminiu
Usa intrare Metal
Usa interior Lemn
Terasa
Bucatarie Nemobilata
Bucatarie Neutilata
Apometre
Contor gaz
Nemobilat
Videointerfon
Lift
Spatii agrement
Localizare
Posh Estate
Esti interesat de aceasta proprietate ?
Proprietati similare
De vanzare Imagine 866
Apartament cu 4 camere Primaverii
Bucuresti, Primaverii 580.000€
4 camere 2 bai 120mp
De vanzare Imagine 804
Dorobanti - Capitale, 4 camere 105 mp, renovat 2025
Bucuresti, Dorobanti 630.000€
4 camere 2 bai 105mp
De vanzare Imagine 1027
3 camere cu loc de parcare în Cortina 126 - Erou Iancu Nicolae
Bucuresti, Iancu Nicolae 570.000€
3 camere 2 bai 101.30mp
De vanzare Imagine 479
4 camere de excepție în ONE Floreasca Towers
Bucuresti, Floreasca 580.000€ + TVA
4 camere 3 bai 116.07mp
De vanzare Imagine 102
4 camere 180,16 mp în ONE Floreasca Towers
Bucuresti, Floreasca 590.000€ + TVA
4 camere 3 bai 116.33mp
De vanzare Imagine 1091
Duplex cu terasă și curte langa Arcul de Triumf
Bucuresti, Arcul de Triumf 595.000€
3 camere 3 bai 126.04mp