Imagine 100

3 camere cu 106 mp utili in Laguna Residence

ID: P10696 Bucuresti, Aviatiei 1
395.000€
Descriere
Posh Estate
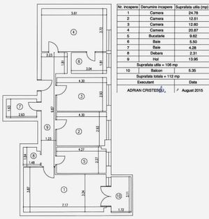
Apartament 3 camere, mobilat si utilat, decomandat, la etajul 2 din 7, în complexul Laguna Residence, cu spatii verzi, promenada, loc de joaca pentru copii, piscina exterioara si pază 24/7, construit in anul 2015.
– Suprafață totală de 112 mp: 106 mp utili+ 6 mp balcon.
– Configuratie: 2 dormitoare, living, bucatarie, hol, 2 bai si balcon.
- Incălzire prin calorifere asigurată de centrala proprie.
- Optional, loc de parcare subteran disponibil la 25.000 EUR.

Acces rapid la transport public: 5 minute până la statiile STB, 14 minute până la Metrou Pipera.
Localizare: pe malul Lacului Tei, la câțiva pași de Muzeul Aviatiei, Promenada Mall și birourile Globalworth, cu acces rapid la Șoseaua Fabrica de Glucoză, Barbu Vacarescu, Floreasca, Parcul Herastrau, Autostrada A3 București-Ploiești și Aeroportul International Henri Coandă.
Contactează-ne pentru detalii suplimentare și programarea unei vizionări private. Cod proprietate P10548.

Caracteristici
  • ID:P10696
  • Nr. camere:3
  • Nr. dormitoare:2
  • S. utila:106.00 mp
  • S. balcoane:6.00 mp
  • S. utila totala:112.00 mp
  • S. construita:133.00 mp
  • Comp.:Decomandat
  • Confort:1
  • Etaj:Etaj 2
  • Nr. bucatarii:1
  • Nr. bai:2
  • Nr. balcoane:1
  • Nr. parcari:1
  • Pret parcare:25.000€
  • An constructie:2025
  • Structura:Beton
  • Tip imobil:Bloc
  • Regim inaltime:S+P+7
  • Orientare:Sud-Est
  • Clasa energetica:A
Specificatii
Curent
Apa
Canalizare
Gaz
CATV
Acces internet
Fibra optica
Utilitati in zona
Centrala proprie
Calorifere
Aer conditionat
Ventiloconvectoare
Izolatie Exterior
Bloc izolat termic
Vopsea lavabila
Faianta
Parchet
Gresie
Ferestre Termopan
Usa intrare Metal
Usa interior Lemn
Bucatarie Mobilata
Bucatarie Utilata
Bucatarie Neutilata
Apometre
Contor gaz
Complet mobilat
Interfon
Lift
Spatii agrement
Curte comuna
Piscina exterioara
Localizare
Posh Estate
Esti interesat de aceasta proprietate ?
Proprietati similare
TOP De vanzare Imagine 1140
Apartament lângă lac, parcare, terasă, boxa incluse
Bucuresti, Nordului 389.000€
4 camere 3 bai 132mp
TOP De vanzare Imagine 758
5 camere cu promenada la lac, parcare si boxa incluse
Bucuresti, Baneasa 389.000€
5 camere 3 bai 132mp
De vanzare Imagine 1039
Apartament de 3 camere in Herastrau
Bucuresti, Herastrau 450.000€
3 camere 2 bai 145mp